Descriptif
Appartement de 2.5 pièces en duplex, situé à proximité des commodités bulloises.
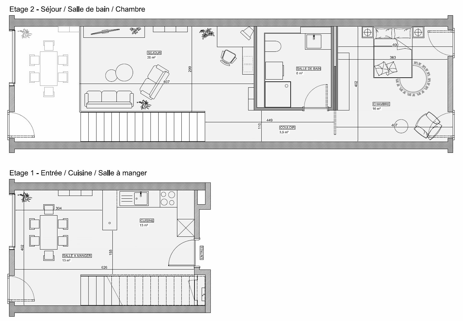
Cet appartement se compose de la manière suivante :
Etage 1
- entrée
- cuisine entièrement équipée ouverte sur la salle à manger
- salle à manger
Etage 2
- séjour
- espace bureau
- salle de douches avec colonne de lavage/séchage
- grande chambre
Cet appartement est actuellement loué.
La place de parc intérieure est facturée CHF 30'000.00 en sus du prix de vente.
Si vous souhaitez de plus amples renseignements, n'hésitez pas à nous contacter !
Commodités
Environnement
- Montagnes
- Commerces
- Arrêt de bus
- Entrée/sortie autoroute
Efficacité énergétique (CECB)
L'étiquette énergétique résulte de l'évaluation de la performance énergétique globale (chauffage, eau chaude sanitaire, éclairage et autres postes de consommation) et de la performance de l’enveloppe d'un bâtiment.









